中古一戸建て 呉市広弁天橋町
所在地
呉市広弁天橋町
3,080万円
29.81坪
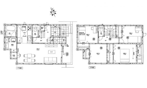
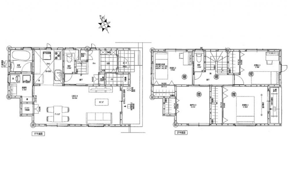
4LDK
外構付・フラット35S使用可能(期限あり)・瑕疵担保保険付
既存建物基礎残置あり
物件概要
- 交通
-
呉線 新広駅 まで 徒歩26分
バス停弁天橋 まで 徒歩3分
- 接道状況
- 南東側 公道4.63m
- 土地面積
- 100.69㎡ (30.45坪)
- 建物面積
- 98.57㎡ (29.81坪)
- 築年数
-
2024年
(令和6)
9月
築1年 - 建ぺい率
- 60%
- 容積率
- 185%
- 土地権利
- 所有権
- 構造および階数
- 木造 地上2階建
- 小学校区
- 三坂地 ( 630m )
- 中学校区
- 広中央 ( 430m )
- 私道負担
- 地目
- 宅地
- 現況
- 空
- 引渡時期
- 即時
- 駐車場
- 有
- 上水道
- 公共
- 下水道
- 公共
- ガス
- 都市ガス
- 都市計画
- 市街化区域
- 用途地域
- 1種中高
- 設備・条件
- システムキッチン、食器洗浄乾燥機、シャンプードレッサー、浴室乾燥機、洗浄便座、追い焚き
- 備考
- 取引態様
- 仲介



