新築一戸建て 呉市広文化町
所在地
呉市広文化町
3,780万円
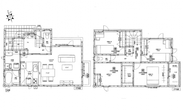
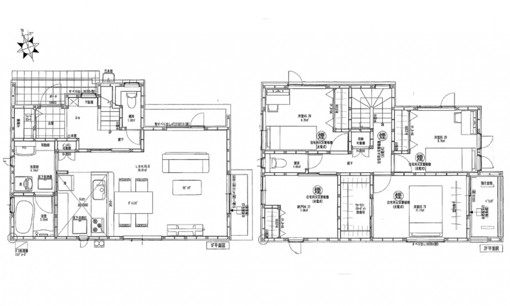
30.87坪
3SLDK
外構付・フラット35S使用可能(期限あり)・瑕疵担保保険付
セットバック後の土地面積:106.83㎡
物件概要
- 交通
-
呉線 新広駅 まで 徒歩6分
バス停広市民センター まで 徒歩5分
- 接道状況
-
北側 公道3.95m
東側 公道4.4m - 土地面積
- 107.21㎡ (32.43坪)
- 建物面積
- 102.06㎡ (30.87坪)
- 築年数
-
2024年
(令和6)
12月
築1年 - 建ぺい率
- 60%
- 容積率
- 200%
- 土地権利
- 所有権
- 構造および階数
- 木造 地上2階建
- 小学校区
- 横路 ( 1390m )
- 中学校区
- 横路 ( 1490m )
- 私道負担
- 地目
- 宅地
- 現況
- 空
- 引渡時期
- 即時
- 駐車場
- 上水道
- 公共
- 下水道
- 公共
- ガス
- 都市ガス
- 都市計画
- 市街化区域
- 用途地域
- 1種住居
- 建築確認番号
- 第R06認広建セ00864号
- 設備・条件
- カウンターキッチン、食器洗浄乾燥機、シャンプードレッサー、浴室乾燥機、モニタ付インターホン、洗浄便座、追い焚き
- 備考
- 取引態様
- 仲介



