中古一戸建て 呉市本通5丁目
所在地
呉市本通5丁目
3,290万円
30.99坪
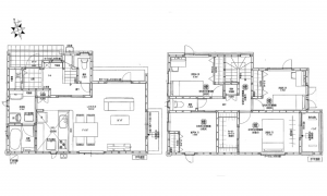
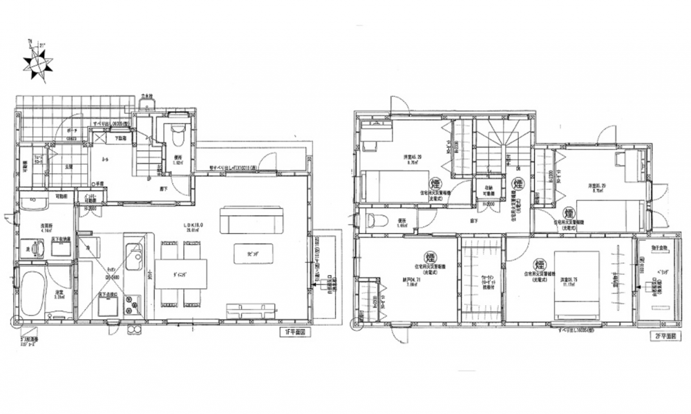
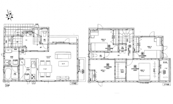
1F 5.63納戸 2F 17.63LDK トイレ 3F 6.13洋 5.25洋 4.46洋 トイレ
在来工法 施工:トータテハウジング 外構付
瑕疵担保保険付 フラット35S使用可(但し期限内に限る)
カップボードあり 洋室2室にエアコンあり
実測面積(82.03㎡)と公簿面積(81.98㎡)が異なるため、
地積更生登記を行う予定です
建築確認は南西の共有ブロック(地番2-1と2-4)を
はずした土地面積(81.47㎡)で取得しております
共有の既存ブロック有 準防火地域
物件概要
- 交通
-
呉線 呉駅 バス停停 まで 徒歩19分
バス停本通5丁目 まで 徒歩2分
- 接道状況
- 北東側14.7m
- 土地面積
- 82.03㎡ (24.81坪)
- 建物面積
- 102.46㎡ (30.99坪)
- 築年数
-
2024年
(令和6)
6月
築1年 - 建ぺい率
- 容積率
- 土地権利
- 構造および階数
- 木造
- 小学校区
- 本通 ( 290m )
- 中学校区
- 和庄 ( 600m )
- 私道負担
- 地目
- 現況
- 空
- 引渡時期
- 駐車場
- 上水道
- 公共
- 下水道
- 公共
- ガス
- 都市ガス
- 都市計画
- 用途地域
- 設備・条件
- 備考
- 取引態様
- 仲介



